8月5日,广西河池市自然资源局发布关于广西河池广投燃气有限公司天然气场站项目总平面规划方案的批前公示。其中项目地址:宜州经济开发区银利来公司西北面。公示内容:广西河池广投燃气有限公司天然气场站项目总平面规划方案。公示时间:2025年8月5日至2025年8月13日。
全文如下:
河池市自然资源局 关于广西河池广投燃气有限公司天然气场站项目总平面规划方案的批前公示
广西河池广投燃气有限公司向我局提出关于审批广西河池广投燃气有限公司天然气场站项目总平面规划方案的申请,我局依法依规组织审查。根据《中华人民共和国城乡规划法》《广西壮族自治区实施〈中华人民共和国城乡规划法〉办法》《广西壮族自治区自然资源厅关于进一步加强和规范建设用地和建设工程规划许可管理工作的通知》(桂自然资规〔2023〕1号)的有关规定,现进行批前公示。
一、项目地址
宜州经济开发区银利来公司西北面。
二、公示内容
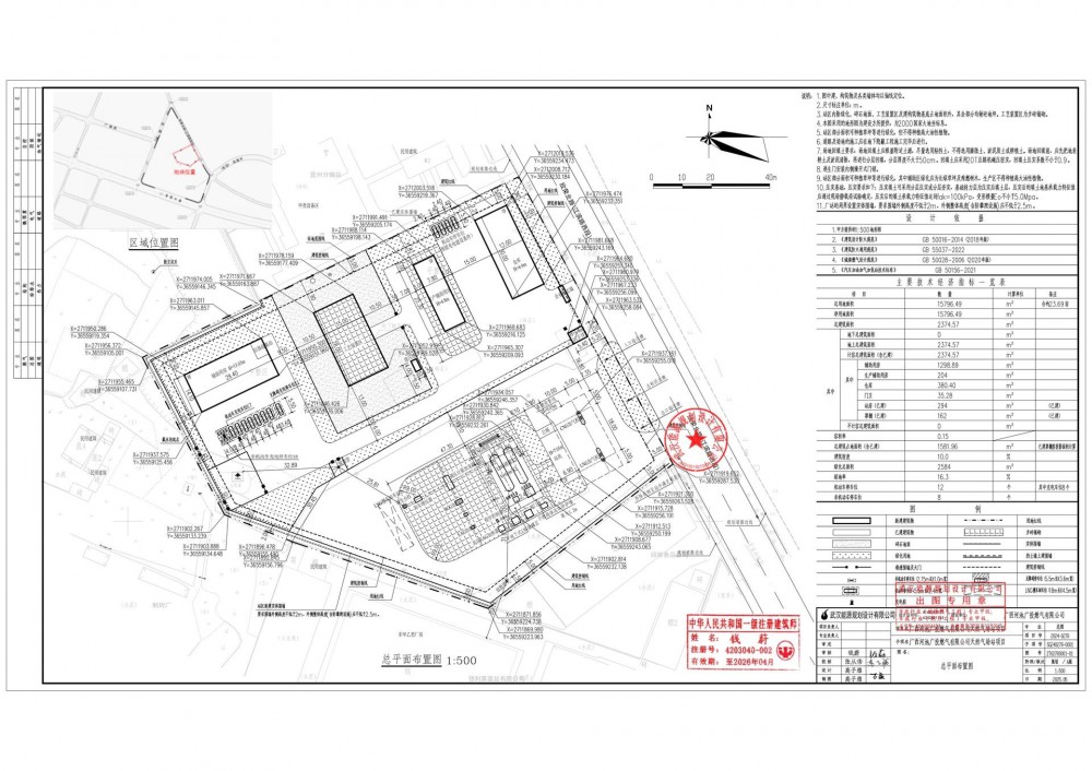
广西河池广投燃气有限公司天然气场站项目总平面规划方案。
三、公示时间
2025年8月5日至2025年8月13日。
四、公示地点
(一)河池市自然资源局公告栏(河池市宜州区庆远镇中山大道8-1号)。
(二)河池市自然资源局官方网站(http://zrzyj.hechi.gov.cn/)。
(三)项目所在地。
该项目建设涉及到的利害关系人如有意见,请于公示期内将署真实姓名和联系方式的书面意见(利害关系人应当提供与该公示事项有利害关系的事实和证明)提交至我局(地址:河池市宜州区庆远镇中山大道8-1号河池市自然资源局,电子邮箱:ghhx xzx2207819@hechi.gov.cn,邮编:546300,联系电话:0778-2110
525)。如反映的书面意见信息不准确或不完整无法及时进一步核实有关情况的,将视为无效意见。
附件:广西河池广投燃气有限公司天然气场站项目总平面规划方案
河池市自然资源局
2025年8月5日
(此件公开发布)
文件下载:
附件:广西河池广投燃气有限公司天然气场站项目总平面规划方案.pdf

切换行业





正在加载...



